Особняк в переулке Протопоповский

Аренда Особняка 3180 м2 в переулке протопоповский в центре Москвы возле метро Проспект Мира

< назад
52511
  • Вид: Особняк
  • Площадь: 3180 м2
  • Класс: B+
  • Планировка: кабинетная
  • Тип недвиж.: Особняке
  • Парковка: Охран | 15 м/мест
  • Округ: ЦАО
  • Налогообложение: НДС | ИФНС 2
  • Метро: Проспект Мира
  • Арендная ставка: 45 000 руб/м2/год
  • Удаленность: 3 м.п.
  • Стоимость в месяц: 11 925 000 руб

Рейтинг объекта

  • Фасад
  • Входная группа
  • Отделка помещения
  • Инженерия
  • Удаленность от метро
8.0

подробнее об объекте

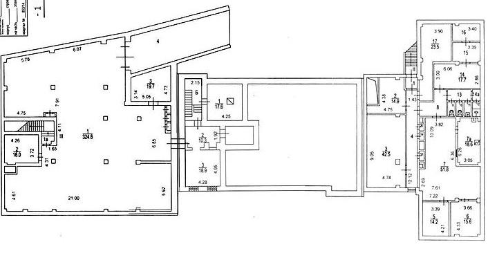
Площадь особняка 3180 кв.м. в переулке Протопоповский в 3 мин. пешком от станции м. Проспект Мира. Отдельно стоящее здание со своей парковка, а также подземным паркингом. Состоит из 3-м этажей, преимущественно кабинетной планировки. Есть выделанная зона руководства с высококачественной отделкой. Санузлы на каждом этаже.

Коммерческие условия

Ставка включает НДС и эксплуатационные платежи.

`