Офис в бизнес центре Преображенский пассаж

Аренда Офиса 33 м2 в бизнес центре преображенский пассаж на северо-западе Москвы возле метро Октябрьское Поле

< назад
43230
  • Вид: Офис
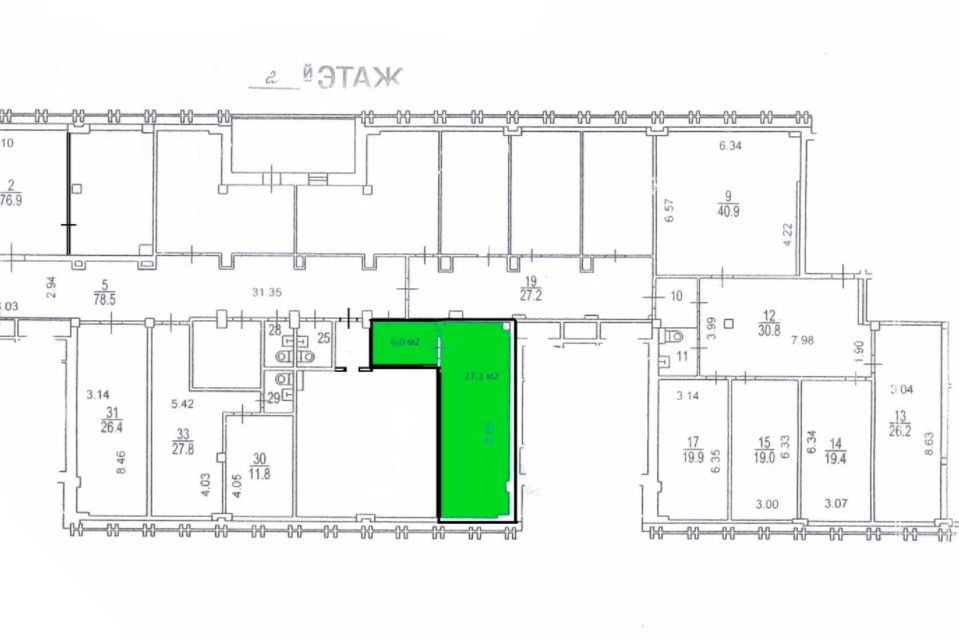
  • Площадь: 33 м2
  • Класс: B
  • Планировка: 1 кабинет
  • Тип недвиж.: Бизнес центре
  • Парковка: Стихийная
  • Округ: СЗАО
  • Налогообложение: УСН | ИФНС 34
  • Метро: Октябрьское Поле
  • Арендная ставка: 35 000 руб/м2/год
  • Удаленность: 6 м.т.
  • Стоимость в месяц: 96 250 руб

Рейтинг объекта

  • Фасад
  • Входная группа
  • Отделка помещения
  • Инженерия
  • Удаленность от метро
5.5

подробнее об объекте

Помещение под офис 33 кв.м. в бизнес центре Преображенский пассаж в 6 мин. транспортом от станции м. Октябрьское Поле. Офисное помещение на 2-ом этаже здания. Сделан качественный офисный ремонт, высота потолка 3 метра. Офис просторный и светлый, благодаря широким окнам. На входе упрощенная пропускная система.

Коммерческие условия

Собственник применяет УСН. Ставка включает коммунальные платежи, связь и уборку. Юридический адрес предоставляется 2000 рублей в месяц к аренде.

`