Офис в бизнес центре Чайка плаза IV

Аренда Офиса 130 м2 в бизнес центре чайка плаза iv в центре Москвы возле метро Проспект Мира

< назад
43412
  • Вид: Офис
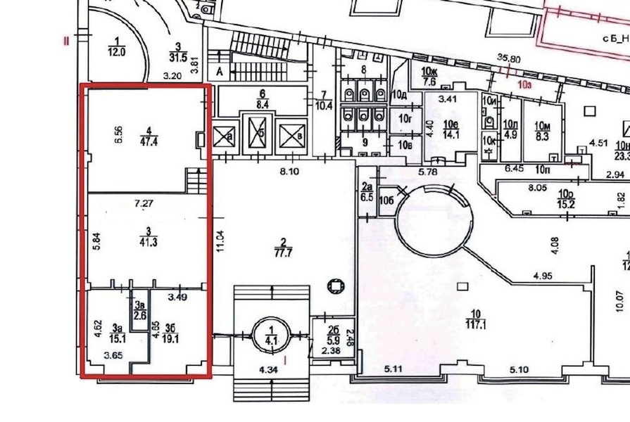
  • Площадь: 130 м2
  • Класс: A
  • Планировка: кабинетная
  • Тип недвиж.: Бизнес центре
  • Парковка: Охран | 2 м/мест
  • Округ: ЦАО
  • Налогообложение: НДС | ИФНС 2
  • Метро: Проспект Мира
  • Арендная ставка: 32 600 руб/м2/год
  • Удаленность: 2 м.п.
  • Стоимость в месяц: 353 167 руб

Рейтинг объекта

  • Фасад
  • Входная группа
  • Отделка помещения
  • Инженерия
  • Удаленность от метро
10.0

подробнее об объекте

Помещение под офис 130 кв.м. в бизнес центре Чайка плаза IV в 2 мин. пешком от станции м. Проспект Мира. Блок расположен до пропускной системы бизнес центра, что позволяет организовать свободную пропускную систему при необходимости. Помещение состоит из двухуровневого зала с перепадом высоты в одни метр. А также двух изолированных кабинетов. Высокие потолки и панорамное освещение в блоке. Установлено центральное кондиционирование и вентиляция.

Коммерческие условия

Арендная ставка включает НДС и эксплуатационные услуги. Дополнительно оплачивается электроэнергия по счетчикам. Стоимость машиноместа в месяц 24780 рублей.

Другие площади в этом здании:

№ лота Вид Площадь Ставка за м2 в год Стоимость в месяц  
41717 94 м2 32 262 руб/м2/год 252 719 руб оставить заявку
`